全国2008年7月高等教育自学考试土木工程制图试题
《自考视频课程》名师讲解,轻松易懂,助您轻松上岸!低至199元/科!
全国2008年7月高等教育自学考试土木工程制图试题
课程代码:02386
一、单项选择题(本大题共5小题,每小题1分,共5分)
在每小题列出的四个备选项中只有一个是符合题目要求的,请将其代码填写在题后的括号内.错选、多选或未选均无分.
1.在建筑平面图中,墙体的线型采用( )
A.细实线
B.粗实线
C.细虚线
D.单点长画线
2.一条直母线沿两条交叉直线移动并平行于某导平面,形成的曲面为( )
A.回转面
B.螺旋面
C.双曲抛物面
D.单叶回转双曲面
3.土建图中,材料图例
表示( )
A.自然土
B.混凝土
C.钢筋混凝土
D.天然石料
4.在结构平面图中,构件代号YTB表示( )
A.雨篷板
B.阳台板
C.预制多孔板
D.楼梯板
5.截切圆柱体的侧面投影图为( )

二、填空题(本大题共5小题,每小题1分,共5分)
请在每小题的空格中填上正确答案.错填、不填均无分.
6.在地形图中,等高线稀疏的地方,表示地面的坡度较_____.
7.使用绘图软件,当由键入点(X,Y)为相对坐标时,应键入_____.
8.在绘图软件中,图层的属性包括开关、颜色及_____等.
9.平面内对H面的最大斜度线与平面内的水平线_____.
10.在某一张建施图中,有详图符号
,编号5其意为_____.
三、判定两直线的相对位置(平行、相交、交叉).
(本大题共4小题,每小题1分,共4分) 
11._____ 12._____ 13._____ 14._____
四、已知正方形ABCD为铅垂面,边AB为水平线,完成ABCD的两面投影.(本大题5分)
15.
五、画出立体的正面斜二轴测图.(本大题10分)
16.
六、补出立体的第三投影图(本大题共2小题,每小题8分,共16分)
17.求正面(V面)投影图 18.求水平(H面)投影图
七、求作三棱柱与三棱台相贯线的水平投影和侧面投影.(本大题10分)
19.
八、求作空心缺圆柱的三面投影.(本大题10分)
20.
九、画出物体的1-1剖面图.(本大题10分)
21.
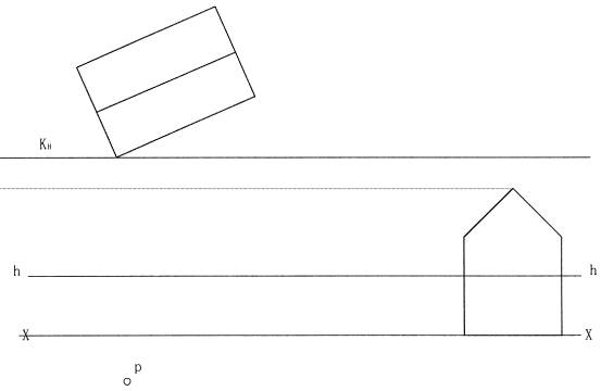
十、画出两坡屋顶房屋的两点透视图(本大题10分)
22.

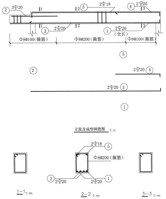
十一、补全梁的断面1-1,3-3;画全成型钢筋图(1#、2#、5#钢筋,尺寸不注)写出采用计算机绘制该图时,要用到的编辑和绘图命令.(本大题15分)
23.
本文标签:江西自考 历年真题 全国2008年7月高等教育自学考试土木工程制图试题
转载请注明:文章转载自(http://www.zikao.jx.cn)
《江西自考网》免责声明:
1、由于各方面情况的调整与变化,本网提供的考试信息仅供参考,考试信息以省考试院及院校官方发布的信息为准。
2、本网信息来源为其他媒体的稿件转载,免费转载出于非商业性学习目的,版权归原作者所有,如有内容与版权问题等请与本站联系。联系邮箱:812379481@qq.com









